PPC_site map.jpg
 Existing building
 Existing plan
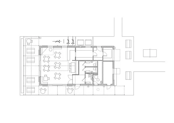
 Proposed plan
PPC_general.jpg
PPC_path.jpg
PPC_axo.jpg
PPC_park.jpg
PPC_graphic 02 600.jpg
PPC_graphic 05 600.jpg
IMG_4101.JPG
prev / next